Un nuovo, esclusivo progetto sta nascendo nel pieno centro di Bergamo: una nuova dimensione del vivere, in armonia tra eleganza e design.
BGTOWN è un’iniziativa del gruppo PTL Real Estate, e si trova nell'area compresa tra Via Paglia 8 e Via Ghislanzoni 24, a Bergamo.
Una location straordinaria, per vivere il meglio che la città sa offrire.
Un luogo dinamico e sempre vivo in cui tutto è a portata di mano (negozi, ristoranti, scuole, attività ricreative, isole verdi ed aree pedonali).
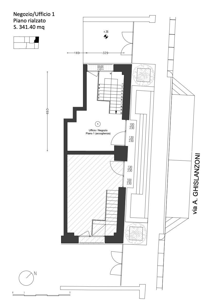
Proponiamo in vendita UFFICIO posto su due livelli al piano ribassato e rialzato di mq 341,2.
Possibilità di autorimesse singole e doppie.
Il progetto, del gruppo Eego Studios, reinterpreta l’architettura del palazzo italiano attraverso forme moderne che si fondono con la storia.
Una perfetta combinazione tra marmo, vetro e metallo per una nuova residenza dallo stile classico, disegnata per vivere il futuro.
La progettazione degli spazi interni è personalizzata in base alle specifiche esigenze dei clienti.
Il capitolato è di assoluto pregio, con ampia scelta di personalizzazione deimateriali.
Massima attenzione è rivolta al risparmio energetico, al comfort e alla sostenibilità.
Tutti i sistemi installati sono silenziosi, invisibili, ecosostenibili ed energeticamente efficienti.
Consegna primavera 2026
VENDITA DIRETTA - NO PROVVIGIONI
GESTIONE PERMUTE
Per ulteriori informazioni, visita www.bgtown.it
La presente pubblicazione costituisce esclusivamente una base illustrativa.
Tutte le informazioni, immagini e contenuti presenti sono puramente indicativi e non costituiscono vincolo contrattuale.
| Numero di riferimento | M500P1 |
| Indirizzo | Via Ghislanzoni 24, Bergamo |
| Comune | Bergamo |
| Zona | Centrale |
| Tipologia di contratto | vendita |
| Prezzo di vendita | 1.366.000 € |
| Tipologia immobile | Ufficio |
| Tipologia costruzione | Palazzina |
| Anno costruzione | 2025 |
| Stato di conservazione | Nuovo |
| Esposizione | Nord-Est-Sud |
| Piani totali | 6 |
| Piano dell'immobile | Su più piani |
| Ingresso indipendente | Sì |
| Classe energetica |
A1 |
| I.P.E. | Da progetto |
| Superficie | 341,2 m2 |
| Numero locali | 4 |
| Numero camere | 1 |
| Numero bagni | 3 |
| Cucina | Non presente |
| Ascensore | Sì |
| Impianto allarme | Predisposto |
| Impianto condizionatore | Sì |
| Riscaldamento | Centralizzato a pavimento |
| Finiture | Finiture di lusso |
| Piano cottura | Nessuno |
| Consistenza | Piano | Superficie | Coefficiente | Tipo Superficie | Sup. Commerciale |
|---|---|---|---|---|---|
| Abitazione | Su più piani | 341,2 m2 | 100 % | Principale | 341,2 m2 |