Un nuovo, esclusivo progetto sta nascendo nel pieno centro di Bergamo: una nuova dimensione del vivere, in armonia tra eleganza e design.
BGTOWN è un’iniziativa del gruppo PTL Real Estate, e si trova nell'area compresa tra Via Paglia 8 e Via Ghislanzoni 24, a Bergamo.
Una location straordinaria, per vivere il meglio che la città sa offrire.
Un luogo dinamico e sempre vivo in cui tutto è a portata di mano (negozi, ristoranti, scuole, attività ricreative, isole verdi ed aree pedonali).
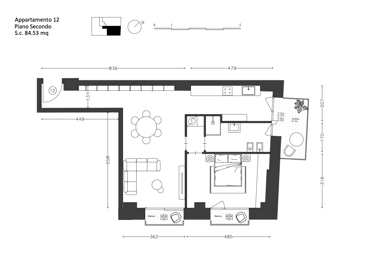
Proponiamo in vendita TRILOCALE posto al piano secondo servito da ascensore di mq 82,26 più terrazzi di mq 5,3 e balconi di mq 1,52.
Possibilità di autorimesse singole e doppie.
Il progetto, del gruppo Eego Studios, reinterpreta l’architettura del palazzo italiano attraverso forme moderne che si fondono con la storia.
Una perfetta combinazione tra marmo, vetro e metallo per una nuova residenza dallo stile classico, disegnata per vivere il futuro.
La progettazione degli spazi interni è personalizzata in base alle specifiche esigenze dei clienti.
Il capitolato è di assoluto pregio, con ampia scelta di personalizzazione deimateriali.
Massima attenzione è rivolta al risparmio energetico, al comfort e alla sostenibilità.
Tutti i sistemi installati sono silenziosi, invisibili, ecosostenibili ed energeticamente efficienti.
Consegna primavera 2026
VENDITA DIRETTA - NO PROVVIGIONI
GESTIONE PERMUTE
Per ulteriori informazioni, visita www.bgtown.it
La presente pubblicazione costituisce esclusivamente una base illustrativa.
Tutte le informazioni, immagini e contenuti presenti sono puramente indicativi e non costituiscono vincolo contrattuale.
| Numero di riferimento | M500P12 |
| Indirizzo | Via Ghislanzoni 24, Bergamo |
| Comune | Bergamo |
| Zona | Centrale |
| Tipologia di contratto | vendita |
| Prezzo di vendita | 423.000 € |
| Tipologia immobile | Trilocale |
| Tipologia costruzione | Palazzina |
| Anno costruzione | 2024 |
| Stato di conservazione | Nuovo |
| Esposizione | Sud-Est |
| Piani totali | 6 |
| Piano dell'immobile | 2 |
| Ingresso indipendente | No |
| Classe energetica |
A1 |
| I.P.E. | Da progetto |
| Superficie | 84 m2 |
| Numero locali | 3 |
| Numero camere | 2 |
| Numero bagni | 2 |
| Cucina | Open space |
| Terrazza | Sì, m2 |
| Ascensore | Sì |
| Impianto allarme | Predisposto |
| Impianto condizionatore | Sì |
| Riscaldamento | Centralizzato a pavimento |
| Finiture | Finiture di lusso |
| Piano cottura | Induzione |
| Consistenza | Piano | Superficie | Coefficiente | Tipo Superficie | Sup. Commerciale |
|---|---|---|---|---|---|
| Abitazione | 2 | 82,26 m2 | 100 % | Principale | 82,26 m2 |
| Terrazzo | 2 | 5,4 m2 | 33 % | Principale | 1,7 m2 |
| Balcone | 2 | 1,52 m2 | 33 % | Principale | 0,5 m2 |